Двухкомнатная квартира 44,20 м2 по ул. Урицкого 25 за 3200000 руб.

Двухкомнатная квартира по ул. Урицкого, 25 в Ярославле
Цена 3 200 000 р. (72 398 р./м2)
Подать заявку на ипотеку
Адрес Урицкого, 25
Этаж 4/5
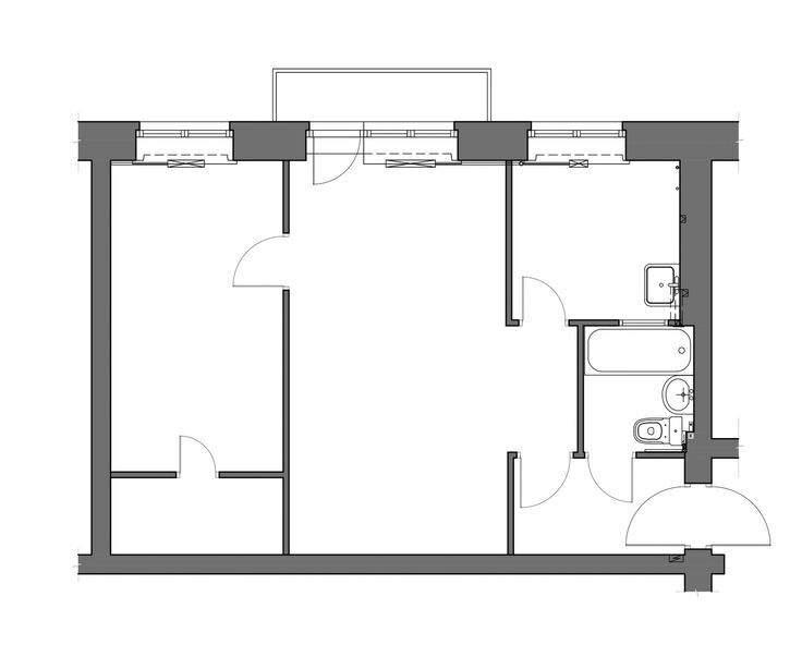
Площадь общая 44,2 м2, жилая 28 м2, кухни 6 м2
Кол-во комнат Двухкомнатная
Арт. 85124559. Предлагаем к продаже 2-х комнатную квартиру в Дзержинском районе. Общая площадь квартиры 44,2 кв.м. Представленная квартира обладает рядом преимуществ, делающих её привлекательной покупкой: Преимущества квартиры 1. Расположение Центр Дзержинского района Школа в 50 метрах Детский сад в 150 метрах Остановка общественного транспорта в 170 метрах Удобное транспортное сообщение по Ленинградскому проспекту 2. Комфорт проживания Квартира не угловая Косметический ремонт позволяет сразу заселяться Окна и балкон ПВХ Совмещённый санузел облицован плиткой Установка газового водонагревателя снижает затраты на горячую воду Отсутствие проблем с крышей (капремонт проведен в 2022 году) 3. Инфраструктура и окружение Панельная пятиэтажка постройки 1965 года, ухоженная территория Управляющая компания "УПРАВДОМ ДЗЕРЖИНСКОГО РАЙОНА" Ухоженный подъезд без неприятных запахов Благоприятные соседи - семьи и пенсионеры Развитая инфраструктура района с магазинами и транспортом 4. Юридические аспекты Один взрослый собственник, владеющий квартирой более трех лет Готовность документов к сделке Таким образом, данная квартира является привлекательным вариантом для тех, кому важна близость социальной инфраструктуры, хорошее местоположение и комфорт проживания.
Описание дома
Этажность дома 5
Объявление № 23277197
Дата подачи:
4 октября 2025 г. 3:39
Дата обновления:
4 октября 2025 г. 2:57
Просмотров 18 Хотите продать быстрее?

Продавец
Коровкина Ольга
Показать номер телефона
Пожаловаться
Комментарии:
Добавить